35 SCOTLAND ROAD
TrueNorthRealty.net
22 Woburn Street | Suite 24 | Reading MA 01867
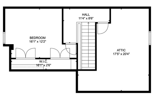
THIRD FLOOR
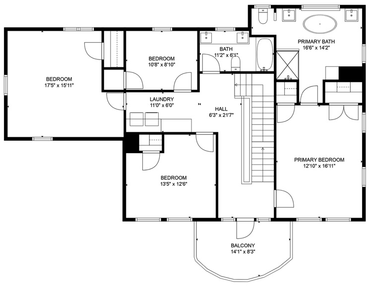
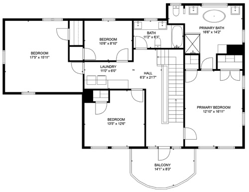
SECOND FLOOR
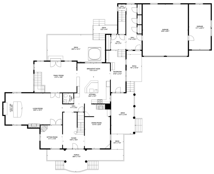
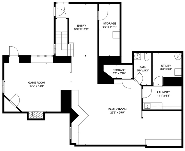
FIRST FLOOR
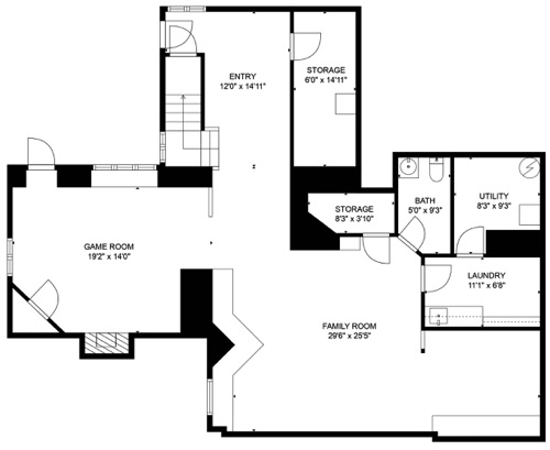
OVER GARAGE
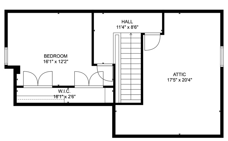
LOWER LEVEL